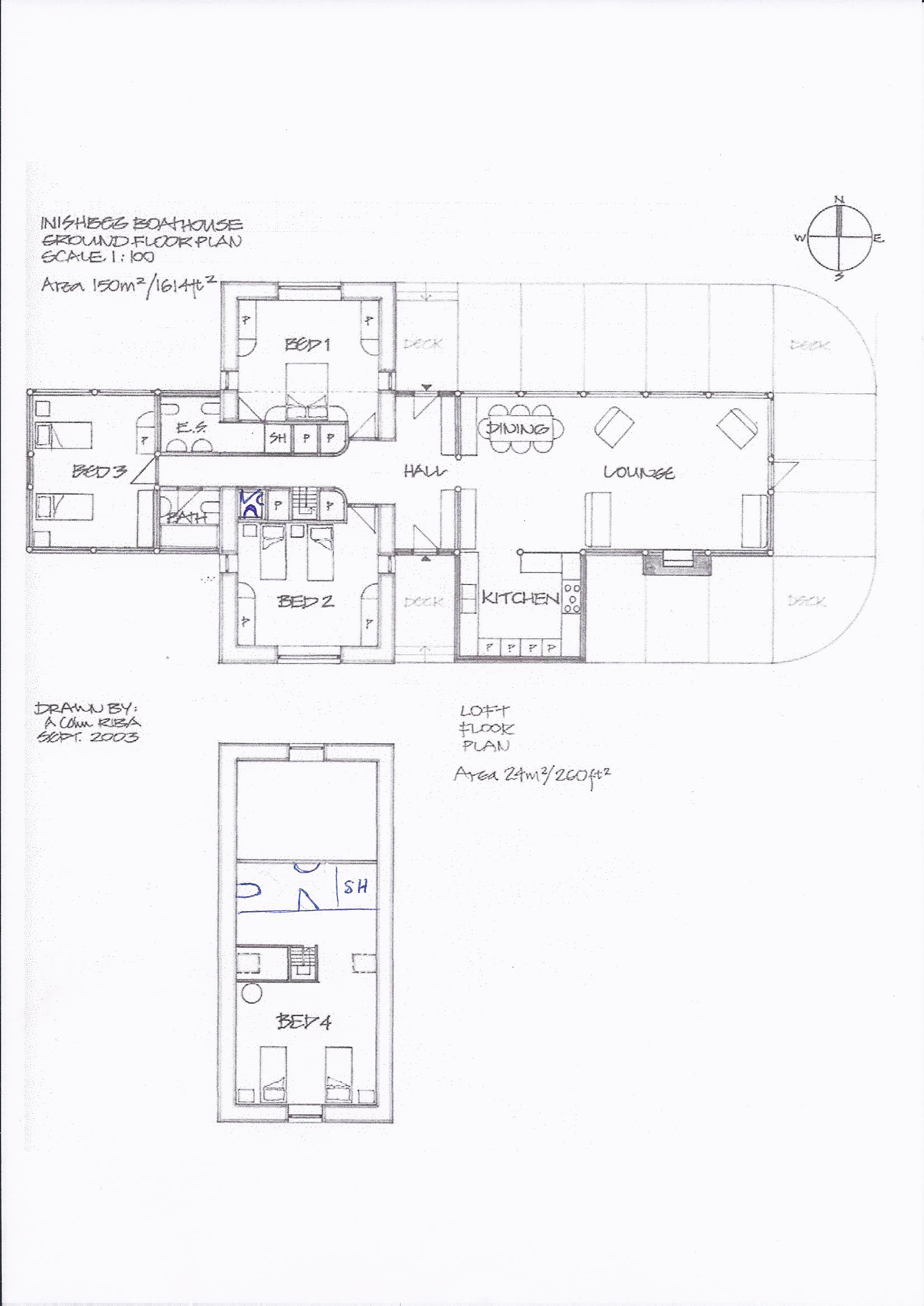
The Boathouse - Floor Plans